Create your custom floor plans with our professional AI-powered generator. AI Floor Plan Generator helps you design floor plans by adding rooms, specifying dimensions, and choosing styles — instantly and effortlessly.

Create your custom floor plan by adding rooms and specifying dimensions



Your floor plan will appear here
Enter your requirements to get started
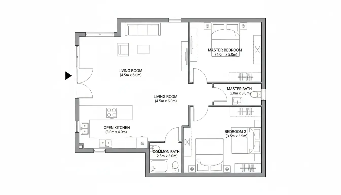
Explore how our AI creates professional floor plans for various property types and requirements. See real examples of generated floor plans with different styles and configurations.
Our AI uses advanced algorithms to create optimized layouts. It considers room relationships, traffic flow, and spatial efficiency to generate floor plans that are both functional and aesthetically pleasing.


Choose the perfect style for your needs. Technical blueprints for construction documents, 2.5D colorful views for client presentations, or 3D isometric designs for comprehensive visualization. The system supports all professional requirements.
Generate complete floor plans in seconds. Whether you need a simple apartment layout or a complex multi-story design, our floor plan generator delivers professional results quickly and efficiently.

Our intelligent AI uses cutting-edge technology to create custom floor plans based on your specifications. Generate professional floor plans with accurate dimensions, optimized room layouts, and proper spatial relationships in seconds.
Choose from various property types including houses, apartments, villas, and townhouses. Specify total area, number of floors, and room requirements. The system intelligently designs layouts based on your needs.
Our advanced AI transforms your requirements into professional floor plans. The system understands architectural principles, optimizes room arrangements, and ensures proper proportions and spatial flow.
Select from three professional styles: technical blueprints for precise measurements, colorful 2.5D views for visual appeal, or detailed 3D isometric designs for comprehensive visualization. Each style serves different professional needs.
Generate your custom floor plan in seconds. No waiting, no complex software. Simply enter your requirements and receive a professional floor plan with accurate room layouts and dimensions immediately.
Easily configure bedrooms, bathrooms, kitchens, living rooms, and dining rooms with precise counts. Add optional features like garages. The system ensures all rooms are properly sized and positioned.
Every floor plan generated meets professional standards with accurate dimensions, proper room proportions, and logical spatial relationships. Perfect for presentations, planning, and documentation purposes.
Create professional floor plans in three simple steps with our AI-powered tool — no design experience required.
Select property type, enter total area, choose number of floors, specify room counts, and pick your preferred style. You can also add custom requirements for special features.
Our AI analyzes your specifications and creates an optimized floor plan with accurate dimensions, proper room layouts, and efficient space utilization.
Receive your professional floor plan instantly. Download in high quality and use it for presentations, planning documents, or further design work.
Everything you need to know about using our AI floor plan generator to create custom floor plans.
Use our AI floor plan generator to create professional floor plans in seconds. Enter your requirements and generate custom floor plans with accurate dimensions and optimized room layouts — completely free to try.